В вашей корзине ещё нет товаров.
| Цена за 1м3, руб | 43 139 с НДС* |
|
|||||||||
| Количество в квадратом метре, шт | 0,38 | ||||||||
| Нормы погрузки на авто | 6 | ||||||||
| Нормы погрузки ЖД | 9 | ||||||||
| Ссылка на стандарт | https://disk.yandex.ru/d/zZHlLY8diWzEpA | ||||||||
| Расход стали, кг | 348,2 |
| Расход стали на 1м3 бетона, кг | 272,03 |
| Класс прочности | В22,5 |
| Марка бетона | М300 |
| Морозостойкость | F150-F300 |
| Водонепроницаемость | W6-W8 |
| Марка бетона по EN 206-1 | C18/22 |
| Геометрический объем | 8,850 |
| Объем бетона | 1,28 |
| Стандарт | ТП |
| Номер стандарта | 501-166 |
| Статус | действует |
| Год выпущенного стандарта | 1974 |
| Название стандарта | Пешеходные мосты через железные дороги. |
| Название | Длина, мм | Ширина, мм | Высота, мм | Вес, кг | Номер стандарта | Цена | |
|---|---|---|---|---|---|---|---|
| 3534 | 120 | 180 | 190 | ИИ 01-02 |
по запросу |
||
| 3895 | 120 | 200 | 231 | ИИ 01-02 |
по запросу |
||
| 5140 | 200 | 2160 | 1330 | 503-0-17 |
16 334 руб. |
||
| 6220 | 200 | 2880 | 1100 | 503-0-17 |
13 423 руб. |
||
| 5470 | 350 | 2880 | 1780 | 503-0-17 |
29 642 руб. |
||
| 4390 | 350 | 2160 | 1550 | 503-0-17 |
22 930 руб. |
||
| 4720 | 180 | 1890 | 800 | 501-166 |
12 992 руб. |
||
| 5040 | 180 | 1930 | 800 | 501-166 |
14 916 руб. |
||
| 6000 | 180 | 2450 | 1000 | 501-166 |
17 853 руб. |
||
| 9490 | 260 | 3080 | 3000 | 501-166 |
51 198 руб. |
||
| 12050 | 260 | 4200 | 3800 | 501-166 |
68 626 руб. |
||
| 9490 | 260 | 3080 | 3000 | 501-166 |
53 894 руб. |
||
| 10130 | 260 | 3360 | 3200 | 501-166 |
58 248 руб. |
||
| 12050 | 260 | 4200 | 3800 | 501-166 |
79 995 руб. |
||
| 3898 | 120 | 250 | 285 | ИИ 03-02 |
по запросу |
||
| 7080 | 120 | 4380 | 825 | 3.501-96 |
15 216 руб. |
||
| 22700 | 1000 | 360 | 1375 | 3.501-96 |
9 283 руб. |
||
| 5320 | 120 | 3360 | 650 | 3.501-96 |
8 907 руб. |
||
| 7800 | 120 | 5100 | 575 | 3.501-96 |
7 620 руб. |
||
| 6764 | 660 | 120 | 750 | 3.501-180.95 |
9 480 руб. |
||
| 8330 | 660 | 120 | 970 | 3.501-180.95 |
16 045 руб. |
||
| 3730 | 293 | 120 | 250 | 3.501-180.95 |
4 024 руб. |
||
| 5600 | 293 | 120 | 380 | 3.501-180.95 |
5 783 руб. |
||
| 7460 | 293 | 120 | 500 | 3.501-180.95 |
9 799 руб. |
||
| 9330 | 293 | 120 | 630 | 3.501-180.95 |
12 169 руб. |
| Название | Длина, мм | Ширина, мм | Высота, мм | Вес, кг | Номер стандарта | Цена | |
|---|---|---|---|---|---|---|---|
| 2700 | 2550 | 1300 | 11800 | 501-166 |
по запросу |
||
| 1700 | 2000 | 1300 | 6000 | 501-166 |
по запросу |
||
| 2400 | 2700 | 1300 | 10800 | 501-166 |
по запросу |
||
| 2400 | 2700 | 1300 | 9800 | 501-166 |
по запросу |
||
| 2700 | 2550 | 1300 | 11500 | 501-166 |
101 938 руб. |
||
| 1700 | 1700 | 1300 | 5800 | 501-166 |
47 023 руб. |
||
| 2400 | 2700 | 1300 | 10800 | 501-166 |
154 848 руб. |
||
| 2400 | 2400 | 1300 | 9800 | 501-166 |
76 345 руб. |
||
| 2000 | 350 | 190 | 325 | 501-166 |
2 444 руб. |
||
| 3200 | 350 | 190 | 520 | 501-166 |
3 895 руб. |
||
| 2000 | 570 | 190 | 410 | 501-166 |
3 306 руб. |
||
| 3200 | 570 | 190 | 655 | 501-166 |
5 281 руб. |
||
| 2000 | 320 | 210 | 285 | 501-166 |
2 382 руб. |
||
| 3200 | 320 | 210 | 455 | 501-166 |
3 818 руб. |
||
| 2000 | 320 | 210 | 222 | 501-166 |
2 085 руб. |
||
| 3200 | 320 | 210 | 355 | 501-166 |
3 346 руб. |
||
| 2000 | 390 | 210 | 222 | 501-166 |
2 085 руб. |
||
| 3200 | 390 | 210 | 355 | 501-166 |
3 346 руб. |
||
| 2000 | 350 | 190 | 200 | 501-166 |
2 120 руб. |
||
| 3200 | 350 | 190 | 275 | 501-166 |
2 708 руб. |
||
| 2000 | 570 | 190 | 275 | 501-166 |
3 403 руб. |
||
| 3200 | 570 | 190 | 475 | 501-166 |
4 347 руб. |
||
| 2000 | 320 | 210 | 175 | 501-166 |
1 930 руб. |
||
| 3200 | 320 | 210 | 300 | 501-166 |
2 893 руб. |
||
| 2000 | 390 | 210 | 175 | 501-166 |
1 877 руб. |
||
| 3200 | 390 | 210 | 300 | 501-166 |
3 004 руб. |
||
| 2000 | 370 | 210 | 150 | 501-166 |
1 448 руб. |
||
| 3200 | 370 | 210 | 225 | 501-166 |
2 269 руб. |
||
| 9250 | 1450 | 2400 | 9800 | 501-166 |
по запросу |
||
| 9250 | 1000 | 2400 | 9000 | 501-166 |
по запросу |
||
| 8250 | 2100 | 1750 | 13500 | 501-166 |
по запросу |
||
| 6410 | 500 | 1800 | 3500 | 501-166 |
по запросу |
||
| 9700 | 1800 | 2300 | 10200 | 501-166 |
по запросу |
||
| 9700 | 1800 | 2100 | 10000 | 501-166 |
по запросу |
||
| 9700 | 1000 | 1900 | 8500 | 501-166 |
по запросу |
||
| 8650 | 1800 | 2300 | 9000 | 501-166 |
по запросу |
||
| 8650 | 1800 | 2100 | 8800 | 501-166 |
по запросу |
||
| 8650 | 1800 | 1900 | 7000 | 501-166 |
по запросу |
||
| 2500 | 350 | 350 | 700 | 501-166 |
7 809 руб. |
||
| 1120 | 180 | 350 | 200 | 501-166 |
по запросу |
||
| 2000 | 1640 | 210 | 1400 | 501-166 |
10 122 руб. |
||
| 3200 | 1640 | 210 | 2900 | 501-166 |
19 283 руб. |
||
| 3060 | 3220 | 210 | 4800 | 501-166 |
30 829 руб. |
||
| 3060 | 2250 | 210 | 3300 | 501-166 |
26 385 руб. |
||
| 2950 | 5900 | 700 | 25800 | 501-166 |
по запросу |
||
| 2950 | 1900 | 700 | 8000 | 501-166 |
по запросу |
||
| 2950 | 2950 | 700 | 12300 | 501-166 |
по запросу |
||
| 2600 | 4000 | 400 | 10500 | 501-166 |
по запросу |
||
| 2600 | 3200 | 400 | 8300 | 501-166 |
по запросу |
||
| 2600 | 2900 | 400 | 7500 | 501-166 |
по запросу |
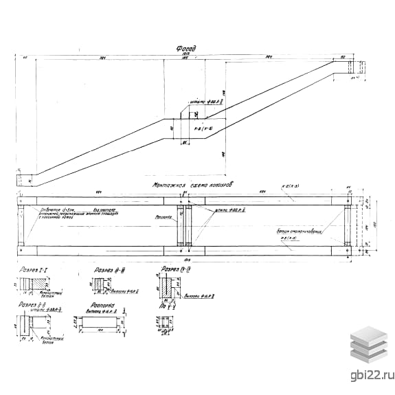
ТД "Еврастрой" предлагает купить Косоуры К 5 по выгодной цене. Наша компания осуществляет доставку продукции по всей территории России и странам СНГ.
В каталоге представлено около 170 тыс. позиций.
По наличию и ценам Мы можем проконсультировать Вас по телефону +7 (343) 300-90-87 или можете отправить запрос на почтовый ящик gbi@gbi22.ru.
Оплатить продукцию можно в рассрочку, для обсуждения вопросов оплаты так же можно обратиться к нашим менеджерам.
Продажа ЖБИ изделий производится с заводов в таких городах как:
Наши менеджеры помогут Вам подобрать оптимальное решения для ваших задач, сориентируют по наличию и ценам, расскажут про оптимальные варианты доставки и оплаты. Звоните +7 (343) 300-90-87
