В вашей корзине ещё нет товаров.

| Цена за 1м3, руб | 22 342 с НДС* |
|
|||||||||
| Количество в квадратом метре, шт | 0,13 | ||||||||
| Нормы погрузки на авто | 5 | ||||||||
| Ссылка на стандарт | https://disk.yandex.ru/d/pO3gEdmksj1DAw | ||||||||
| Расход стали, кг | 145 |
| Расход стали на 1м3 бетона, кг | 90,63 |
| Класс прочности | В25 |
| Марка бетона | М350 |
| Морозостойкость | F200-F300 |
| Водонепроницаемость | W8-W10 |
| Марка бетона по EN 206-1 | C20/25 |
| Геометрический объем | 12,830 |
| Объем бетона | 1,60 |
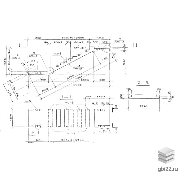
ЛМ 33-60-13 п – это стандартное обозначение железобетонного лестничного марша с полуплощадками. Расшифровка:
Альтернативные варианты маркировки: ЛМ 30.60.13 п или ЛМ 33-60-13 п (согласно альбому РС 6161-88).
Лестничные марши ЛМ 33-60-13 п – это армированные железобетонные конструкции, обеспечивающие безопасное перемещение между этажами в жилых и общественных зданиях. Их монолитная структура гарантирует высокую прочность и долговечность.
Конструкции изготавливаются методом вибропрессования с использованием:
Лестничные марши ЛМ 33-60-13 п используются в:
Перевозка осуществляется специализированным транспортом с обязательной фиксацией. Для защиты от повреждений используются деревянные подкладки. Хранение – в штабелях с соблюдением норм ГОСТ.
| Стандарт | альбом |
| Номер стандарта | РС 6161-88 |
| Статус | действует |
| Год выпущенного стандарта | 1989 |
| Название стандарта | Лестничные марши шириной 1,35 м на пролет 6,0 м и высоту этажа 3,0 м и 3,3 м для изготовления на ЗЖБИ № 18 для работы в условиях госприемки. |
| Название | Длина, мм | Ширина, мм | Высота, мм | Вес, кг | Номер стандарта | Цена | |
|---|---|---|---|---|---|---|---|
| 3558 | 1050 | 1500 | 1525 | ИИ 65 |
12 400 руб. |
||
| 2720 | 1050 | 263 | 1330 | 0-469-11 |
8 256 руб. |
||
| 2720 | 1150 | 263 | 1460 | 0-469-11 |
8 870 руб. |
||
| 2720 | 1200 | 263 | 1520 | 0-469-11 |
9 153 руб. |
||
| 3030 | 1050 | 250 | 1480 | 0-469-11 |
9 097 руб. |
||
| 3030 | 1150 | 250 | 1630 | 0-469-11 |
9 805 руб. |
||
| 3030 | 1200 | 250 | 1700 | 0-469-11 |
10 135 руб. |
||
| 3558 | 1200 | 229 | 1722 | 0-469-11 |
13 315 руб. |
||
| 3558 | 1150 | 229 | 1650 | 0-469-11 |
12 981 руб. |
||
| 3558 | 1050 | 229 | 1510 | 0-469-11 |
12 331 руб. |
||
| 2720 | 1350 | 1400 | 1730 | 1.151.1-6 |
10 370 руб. |
||
| 2720 | 1150 | 1400 | 1450 | 1.151.1-6 |
8 727 руб. |
||
| 2610 | 1200 | 1650 | 1280 | ИИ 01-02 |
по запросу |
||
| 3000 | 1300 | 1650 | 1450 | ИИ 01-02 |
по запросу |
||
| 3555 | 1200 | 318 | 1375 | ИИ 01-02 |
по запросу |
||
| 3880 | 1300 | 307 | 1600 | ИИ 01-02 |
по запросу |
||
| 3600 | 1490 | 1730 | 1950 | 24155-2016 |
по запросу |
||
| 2875 | 900 | 210 | 980 | 789-04 |
10 499 руб. |
||
| 2875 | 900 | 210 | 980 | 789-04 |
10 499 руб. |
||
| 2875 | 1350 | 210 | 1450 | 789-04 |
15 267 руб. |
||
| 2875 | 1350 | 210 | 1450 | 789-04 |
15 267 руб. |
||
| 3950 | 1495 | 1730 | 1950 | 501-7-014.91 |
14 639 руб. |
||
| 3950 | 1495 | 1730 | 1950 | 501-7-014.91 |
14 639 руб. |
||
| 3950 | 1495 | 1730 | 1950 | 501-07-5.84 |
14 639 руб. |
||
| 3950 | 1495 | 1730 | 1950 | 501-07-5.84 |
14 639 руб. |
||
| 3950 | 1495 | 1730 | 1950 | 501-07-3.83 |
13 528 руб. |
||
| 3950 | 1495 | 1730 | 1950 | 501-07-3.83 |
13 528 руб. |
||
| 1760 | 980 | 228 | 730 | 501-0-47 |
7 708 руб. |
||
| 4552 | 1280 | 228 | 2570 | 501-0-47 |
25 073 руб. |
||
| 4552 | 980 | 228 | 1850 | 501-0-47 |
22 468 руб. |
||
| 4203 | 980 | 228 | 1700 | 501-0-47 |
17 671 руб. |
||
| 5500 | 1050 | 3070 | 4000 | КУБ 2.5 |
28 195 руб. |
||
| 5500 | 1050 | 2870 | 4275 | КУБ 2.5 |
29 528 руб. |
||
| 5720 | 1350 | 1650 | 4950 | КУБ 2.5 |
34 053 руб. |
||
| 5120 | 1050 | 1500 | 3875 | КУБ 2.5 |
25 238 руб. |
||
| 5120 | 1050 | 1400 | 3800 | КУБ 2.5 |
24 846 руб. |
||
| 2710 | 1050 | 970 | 2375 | КБК |
17 398 руб. |
||
| 6020 | 1350 | 2040 | 5375 | КБК |
42 033 руб. |
||
| 5720 | 1350 | 1650 | 4950 | КБК |
39 343 руб. |
||
| 4310 | 1050 | 1500 | 3350 | КБК |
26 816 руб. |
||
| 4310 | 1050 | 1500 | 3350 | КБК |
26 799 руб. |
||
| 5120 | 1050 | 1500 | 3875 | КБК |
29 958 руб. |
||
| 5120 | 1050 | 1400 | 3800 | КБК |
29 559 руб. |
||
| 5400 | 1240 | 279 | 2950 | ИИС 61 |
по запросу |
||
| 5065 | 1240 | 279 | 2720 | ИИС 61 |
по запросу |
||
| 2875 | 1350 | 210 | 1450 | ИИС 27-1 |
по запросу |
||
| 6370 | 1150 | 1650 | 2325 | ИИС 04-7 |
31 355 руб. |
||
| 6370 | 950 | 1500 | 2100 | ИИС 04-7 |
26 894 руб. |
||
| 5770 | 1150 | 1650 | 2290 | ИИС 04-7 |
26 757 руб. |
||
| 5770 | 1150 | 1400 | 2190 | ИИС 04-7 |
25 601 руб. |
| Название | Длина, мм | Ширина, мм | Высота, мм | Вес, кг | Номер стандарта | Цена | |
|---|---|---|---|---|---|---|---|
| 5760 | 1350 | 1500 | 3900 | РС 6161-88 |
34 008 руб. |
ТД "Еврастрой" предлагает купить Лестничные марши ЛМ 33-60-13 п по выгодной цене. Наша компания осуществляет доставку продукции по всей территории России и странам СНГ.
В каталоге представлено около 170 тыс. позиций.
По наличию и ценам Мы можем проконсультировать Вас по телефону +7 (343) 300-90-87 или можете отправить запрос на почтовый ящик gbi@gbi22.ru.
Оплатить продукцию можно в рассрочку, для обсуждения вопросов оплаты так же можно обратиться к нашим менеджерам.
Продажа ЖБИ изделий производится с заводов в таких городах как:
Наши менеджеры помогут Вам подобрать оптимальное решения для ваших задач, сориентируют по наличию и ценам, расскажут про оптимальные варианты доставки и оплаты. Звоните +7 (343) 300-90-87
